Eladó családi ház Tamási 39 900 000 Ft

Leírás

Eladó napfényes, 80 m²-es, kétszintes családi ház Tamásiban

Eladásra kínálunk egy napfényes, 80 m²-es, kétszintes családi házat Tamásiban, csendes, rendezett környezetben, mindössze néhány percre a termálfürdőtől és a városközponttól.
Az ingatlan jó alapokkal rendelkezik, így kiváló lehetőség azok számára, akik saját igényeik szerint szeretnék kialakítani otthonukat.

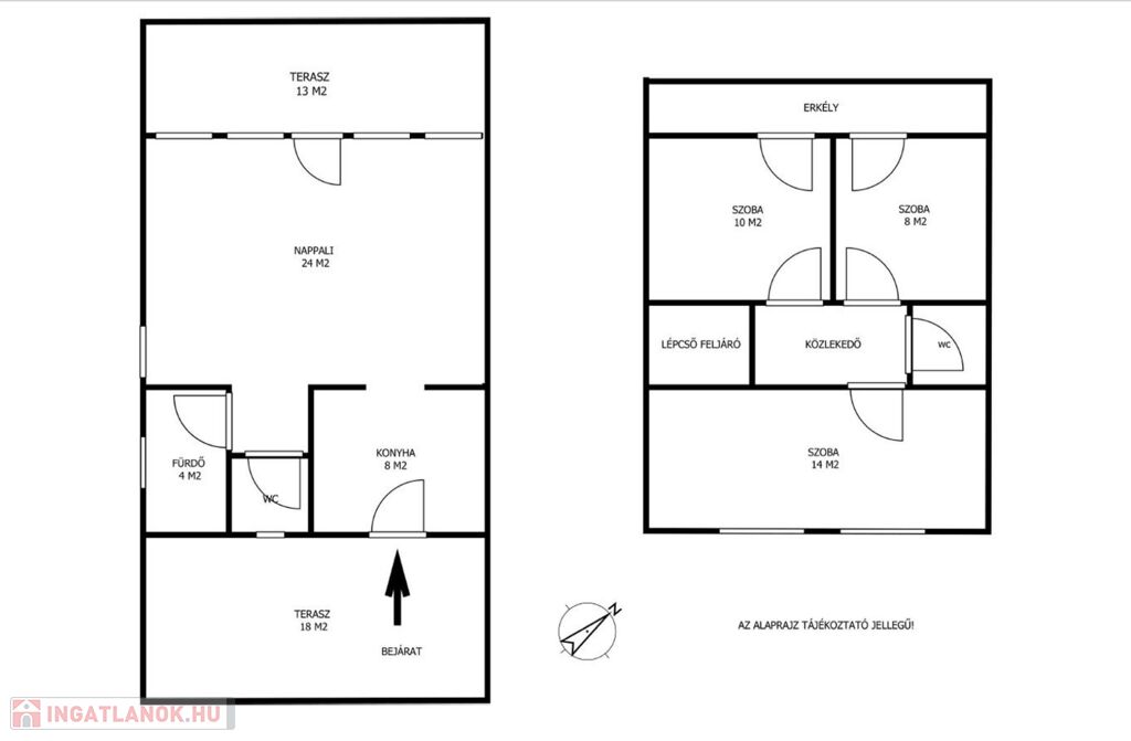
Elrendezés:
nappali + konyha
1 hálószoba
2 félszoba
1 fürdőszoba (felújítandó)
2 külön WC

Főbb jellemzők:
szigetelt épület
klímaberendezés
nappaliban kandalló
világos, jól használható terek
fedett autóbeállási lehetőség
csendes, nyugodt környezet
termálfürdő közelsége

Kiemelten praktikus extra:
12 m² külön tároló

Kinek ideális:
családoknak
pároknak
home office-ban dolgozóknak
befektetési célra (kiadás / értéknövekedés)

Elhelyezkedés:
A termálfürdő közelsége különleges életminőséget biztosít: pihenés és kikapcsolódás néhány perc sétára.

Éttermek, pékség és alapvető szolgáltatások a közelben elérhetők. A buszpályaudvar gyalog kb. 5 perc.

Ne feledjük:
„Szigetelt alapok, kandallós hangulat, nyugodt élet – termálfürdő közelében.”

Amennyiben felkeltette érdeklődésed az ingatlan, kérlek, keress bizalommal, egyeztessünk időpont.
(További képekért és információkért kérem hívjon!)

Családi ház részletei

Ár: 39 900 000 Ft
Méret: 80 négyzetméter
Azonosító: 11612784
Irodai azonosító: 066788
Erkély mérete: 6.00 négyzetméter
Telek: 252 négyzetméter
Ingatlan állapota: Felújított
Jelleg: családi ház
Építőanyag: Tégla
Egész szobák: 4
Nappalik: 1

Egyéb jellemzők

  • Beépíthető tetőtér
  • Csatorna
  • Garázs
  • Melléképület
  • Pince
  • Terasz