Az értékesítő:
Dér Attila
+36 30 339 6019

Eladó családi ház Tamási, 39 900 000 Ft, 80 négyzetméter

39 900 000 Ft
családi ház, 80 négyzetméter
Építőanyag:
Tégla
Egész szobák:
4
Ingatlan állapota:
Felújított
Azonosító:
11612784
Értékesítés típusa:
eladó
Ingatlan típusa:
családi ház
Jelleg:
Családi ház
Település:
Tamási
Alapterület:
80
Telekterület:
252
Ár:
39 900 000 Ft
Terasz:
Nincs
Erkély:
Van
Erkély mérete:
6.00 m2
Beépíthető tetőtér:
Nincs
Melléképület:
Nincs
Pince:
Nincs
Klíma:
Nincs
Telekterület típusa:
négyzetméter
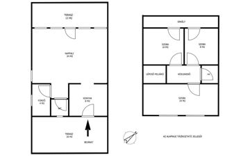
Eladó napfényes, 80 m²-es, kétszintes családi ház Tamásiban Eladásra kínálunk egy napfényes, 80 m²-es, kétszintes családi házat Tamásiban, csendes, rendezett környezetben, mindössze néhány percre a termálfürdőtől és a városközponttól. Az ingatlan jó alapokkal rendelkezik, így kiváló lehetőség azok számára, akik saját igényeik szerint szeretnék kialakítani otthonukat. Elrendezés: nappali + konyha 1 hálószoba 2 félszoba 1 fürdőszoba (felújítandó) 2 külön WC Főbb jellemzők: szigetelt épület klímaberendezés nappaliban kandalló világos, jól használható terek fedett autóbeállási lehetőség csendes, nyugodt környezet termálfürdő közelsége Kiemelten praktikus extra: 12 m² külön tároló Kinek ideális: családoknak pároknak home office-ban dolgozóknak befektetési célra (kiadás / értéknövekedés) Elhelyezkedés: A termálfürdő közelsége különleges életminőséget biztosít: pihenés és kikapcsolódás néhány perc sétára. Éttermek, pékség és alapvető szolgáltatások a közelben elérhetők. A buszpályaudvar gyalog kb. 5 perc. Ne feledjük: „Szigetelt alapok, kandallós hangulat, nyugodt élet – termálfürdő közelében.” Amennyiben felkeltette érdeklődésed az ingatlan, kérlek, keress bizalommal, egyeztessünk időpont. (További képekért és információkért kérem hívjon!)
https://ingatlanok.hu/elado/haz/tamasi/40-millio-ft;80-negyzetmeter;4-szoba;nincs-megadva-futes/11612784