Eladó családi ház Gyál 134 900 000 Ft

Leírás

Eladó azonnal költözhető két generációs családi ház Gyálon – Kényelem és Prémium Minőség !

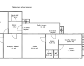
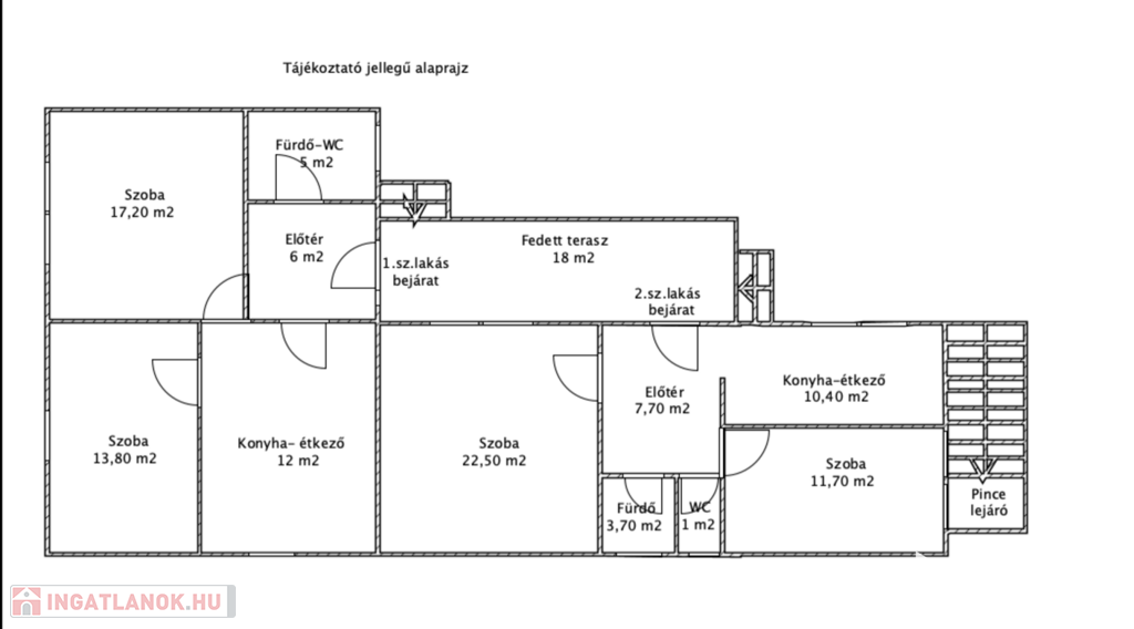
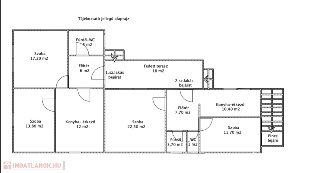
Szeretne egy igényesen felújított, alacsony fenntartású családi házban élni a városközpontban, mégis nyugodt, csendes környezetben? Akkor ne keressen tovább! Eladásra kínálunk egy 110 m²-es, földszintes, részben alápincézett teljesen felújított állapotú családi házat Gyálon 389 m2-es leválasztott telken, amely két generáció igényeinek is megfelelően kialakított.

Főbb jellemzők
- Lakótér:110 m²
- Külső lejáratú pince: 22,50 m2
- Fedett terasz : 18 m2
- Telekméret: 389 m²
- Szobák száma:4 tágas szoba
- Két gépesített konyha
- Fürdőszobák száma: 2 modern fürdőszoba és egy külön WC.
A fedett teraszon át két külön bejáratról nyílik, a lakások külön mérőórákkal rendelkeznek. Ez által mindkét lakás külön igénybe veheti a kedvezményes fogyasztású rezsit. Igény esetén össze is nyitható a két lakás.

Az ingatlan beton alapon, 38-as tégla falazattal épült, betonfödémes, cserép héjalással.

Felújítások: teljeskörű korszerűsítés és felújítás történt kívül-belül.
Új nyílászárók, prémium anyagokból készült belső tér, külső 15 cm-es dryvit hőszigetelés, új víz, villamoshálózat.
- Modern kiegészítők: Redőnyök, szúnyoghálóval ellátott ablakok, klíma, riasztó kiépítve, háromfázisú áram.
- Mindkét lakás külön 24 kW-os kondenzációs kazánról üzemel, ez biztosítja a fűtést és melegvizet.
Az egész éves kellemes hőérzetet( hűtő-fűtő ) split klímák segítik.
- Optikai internetkábel biztosítja a gyors és stabil internetkapcsolatot.
- Modern gépesített konyha mindkét lakásban
- Kényelmi szolgáltatások:Tágas terasz, kertkapcsolat, udvari gépjárműbeálló lehetőség, pince tárolási lehetőséggel.
- Kert: Gondozott kertrész kertvilágítással, ahol élvezheti a természet közelségét és a nyugalmat.

A ház elhelyezkedése is ideális: csendes, forgalomtól elzárt utcában található, azonban a városközpont könnyen és gyorsan elérhető. A jó közlekedési lehetőségeknek köszönhetően percek alatt a belvárosban lehet.
Az ingatlan ügyvédi használati megosztással rendelkezik, osztatlan közös tulajdon, hitelezhető.

Ne hagyja ki ezt a kivételes lehetőséget, hogy egy ilyen remek adottságokkal rendelkező otthon tulajdonosa lehessen!

További információkért és megtekintésért kérem, vegye fel velünk a kapcsolatot !


Várjuk hívását!
(További képekért és információkért kérem hívjon!)

Családi ház részletei

Ár: 134 900 000 Ft
Méret: 110 négyzetméter
Azonosító: 11574690
Irodai azonosító: 338886
Telek: 389 négyzetméter
Ingatlan állapota: Felújított
Jelleg: családi ház
Építőanyag: Tégla
Fűtés jellege: Cirkó
Egész szobák: 4

Egyéb jellemzők

  • Beépíthető tetőtér
  • Csatorna
  • Garázs
  • Melléképület
  • Pince
  • Terasz