Az értékesítő:
Meszesánné Márki Ildikó
+36 20 388 3540

Eladó családi ház Gyál, 134 900 000 Ft, 110 négyzetméter

134 900 000 Ft
családi ház, 110 négyzetméter
Építőanyag:
Tégla
Egész szobák:
4
Ingatlan állapota:
Felújított
Azonosító:
11574690
Értékesítés típusa:
eladó
Ingatlan típusa:
családi ház
Jelleg:
Családi ház
Település:
Gyál
Alapterület:
110
Telekterület:
389
Ár:
134 900 000 Ft
Fűtés jellege:
Cirkó
Terasz:
Van
Erkély:
Nincs
Beépíthető tetőtér:
Nincs
Melléképület:
Nincs
Pince:
Van
Klíma:
Van
Telekterület típusa:
négyzetméter
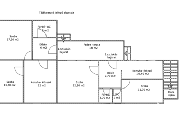
Eladó azonnal költözhető két generációs családi ház Gyálon – Kényelem és Prémium Minőség ! Szeretne egy igényesen felújított, alacsony fenntartású családi házban élni a városközpontban, mégis nyugodt, csendes környezetben? Akkor ne keressen tovább! Eladásra kínálunk egy 110 m²-es, földszintes, részben alápincézett teljesen felújított állapotú családi házat Gyálon 389 m2-es leválasztott telken, amely két generáció igényeinek is megfelelően kialakított. Főbb jellemzők - Lakótér:110 m² - Külső lejáratú pince: 22,50 m2 - Fedett terasz : 18 m2 - Telekméret: 389 m² - Szobák száma:4 tágas szoba - Két gépesített konyha - Fürdőszobák száma: 2 modern fürdőszoba és egy külön WC. A fedett teraszon át két külön bejáratról nyílik, a lakások külön mérőórákkal rendelkeznek. Ez által mindkét lakás külön igénybe veheti a kedvezményes fogyasztású rezsit. Igény esetén össze is nyitható a két lakás. Az ingatlan beton alapon, 38-as tégla falazattal épült, betonfödémes, cserép héjalással. Felújítások: teljeskörű korszerűsítés és felújítás történt kívül-belül. Új nyílászárók, prémium anyagokból készült belső tér, külső 15 cm-es dryvit hőszigetelés, új víz, villamoshálózat. - Modern kiegészítők: Redőnyök, szúnyoghálóval ellátott ablakok, klíma, riasztó kiépítve, háromfázisú áram. - Mindkét lakás külön 24 kW-os kondenzációs kazánról üzemel, ez biztosítja a fűtést és melegvizet. Az egész éves kellemes hőérzetet( hűtő-fűtő ) split klímák segítik. - Optikai internetkábel biztosítja a gyors és stabil internetkapcsolatot. - Modern gépesített konyha mindkét lakásban - Kényelmi szolgáltatások:Tágas terasz, kertkapcsolat, udvari gépjárműbeálló lehetőség, pince tárolási lehetőséggel. - Kert: Gondozott kertrész kertvilágítással, ahol élvezheti a természet közelségét és a nyugalmat. A ház elhelyezkedése is ideális: csendes, forgalomtól elzárt utcában található, azonban a városközpont könnyen és gyorsan elérhető. A jó közlekedési lehetőségeknek köszönhetően percek alatt a belvárosban lehet. Az ingatlan ügyvédi használati megosztással rendelkezik, osztatlan közös tulajdon, hitelezhető. Ne hagyja ki ezt a kivételes lehetőséget, hogy egy ilyen remek adottságokkal rendelkező otthon tulajdonosa lehessen! További információkért és megtekintésért kérem, vegye fel velünk a kapcsolatot ! Várjuk hívását! (További képekért és információkért kérem hívjon!)
https://ingatlanok.hu/elado/haz/gyal/135-millio-ft;110-negyzetmeter;4-szoba;cirko-futes/11574690