Az értékesítő:
Vastag Ákos
+36 30 311 2069

Eladó lakás Siófok, 117 300 000 Ft, 61 négyzetméter

117 300 000 Ft
lakás, 61 négyzetméter
Építőanyag:
Tégla
Egész szobák:
3
Komfort fokozat:
Összkomfort
Ingatlan állapota:
Kitűnő
Azonosító:
11608439
Értékesítés típusa:
eladó
Ingatlan típusa:
lakás
Település:
Siófok
Alapterület:
61
Ár:
117 300 000 Ft
Fűtés jellege:
Hőszivattyú
Erkély:
Van
Erkély mérete:
15.00 m2
Kert mérete:
3.00 m2
Kertkapcsolat:
Nincs
Pince:
Nincs
Lift:
Nincs
Klíma:
Van
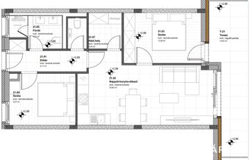
SIÓFOK EZÜSTPART – KÖZVETLEN VÍZPARTI LUXUS: Örökpanoráma és jövőbe mutató technológia! Figyelem! Több lakás is elérhető különböző árban és méretben. További információért hívjon! Felejtse el a kompromisszumokat! Siófok egyik legpatinásabb részén, az Ezüstparton kínálok eladásra prémium lakásokat, ahol a Balaton nemcsak a szomszédja, hanem a mindennapjai része. Lépjen ki a kapun, és máris a szabadstrandon vagy a sétányon találja magát. Itt a reggeli kávé mellé elvehetetlen örökpanoráma jár. Műszaki előny (Amiért ez jobb, mint a többi): Az ingatlan nemcsak szép, hanem okos és fenntartható is. A legmodernebb energetikai megoldásokkal épül, hogy Önnek csak a pihenéssel kelljen foglalkoznia: • FIBARO Okosotthon Rendszer: Vezérelje telefonjáról a hűtést, fűtést, világítást, árnyékolást, riasztót a világ bármely pontjáról! • VRF Inverteres Hőszivattyú: Rendkívül gyors, energiahatékony hűtés-fűtés minden helyiségben. • Prémium Szigetelés: 15 cm-es STO vakolatrendszer és 3 rétegű nyílászárók az alacsony rezsiért és a maximális csendért. • Hanggátló Falak: Silka téglából épült lakáselválasztók a zavartalan magánszféra érdekében. • Liftek: 6 személyes, modern felvonók a parkolótól egészen a legfelső szintig. Exkluzív Extrák: • Rooftop Életérzés: A legfelső szinten egyedi, szeparált tetőteraszok (víz- és áramvétellel) a tökéletes kikapcsolódáshoz. • Parkosított Környezet: Automata öntözőrendszerrel gondozott kert és Viacolor burkolatú kocsibeállók (6 millió forint). • Biztonság: Távirányítós kapu, kaputelefon és becsövezett riasztó-előkészítés minden egységben. • Egyedi Kialakítás: A burkolatokat és szanitereket saját ízlése szerint választhatja ki, hogy a lakás valóban az Ön stílusát tükrözze! A hirdetés erre a lakásra vonatkozik (1. emelet, 21-es lakás – Panorámás): • Terület: 61 m² lakótér + 15 m² panorámás terasz! • Elosztás: Előtér, tágas amerikai konyhás nappali-étkező (konyhabútor nem tartozék), 2 db kényelmes hálószoba, háztartási helység, fürdő és külön WC. • A teraszra a nappaliból és az egyik hálóból is közvetlen kijárás biztosított. Lokáció: • Vasútállomás: 900 méter (12 perc séta) • Éttermek, fagyizók: 2-300 méteren belül • Közvetlen szabadstrandi csatlakozás Várható átadás: 2026. december (a projekt már szerkezetkész, jelenleg a belső munkálatok folynak). Ideális választás akár nyaralónak akár befektetésnek. Az ingatlan elhelyezkedése és felszereltsége miatt kiemelkedő hozamot biztosít rövid- és hosszú távú kiadás esetén is. Ne maradjon le a kezdő ütem előnyeiről! Vegye meg most, és kísérje végig álmai otthonának felépülését. Ne kössön kompromisszumot mások választásával, álmodja meg saját otthona hangulatát! További részletekért és megtekintésért keressen bizalommal a hét bármely napján! (További képekért és információkért kérem hívjon!)
https://ingatlanok.hu/elado/lakas/siofok/117-millio-ft;61-negyzetmeter;4-szoba;tegla-epitesu/11608439