Az értékesítő:
Tripsó Tibor
+36 30 942 5373

Kiadó ipari ingatlan Debrecen, 2 990 000 Ft/hónap, 2 500 négyzetméter

2 990 000 Ft/hónap
ipari ingatlan, 2 500 négyzetméter
Ingatlan állapota:
Átlagos
Azonosító:
11594630
Értékesítés típusa:
kiadó
Ingatlan típusa:
ipari ingatlan
Jelleg:
Egyéb
Település:
Debrecen
Alapterület:
2500
Telekterület:
10670
Ár:
2 990 000 Ft/hónap
Telekterület típusa:
Négyzetméter
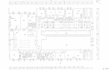
Kiadó Ipari Ingatlan Debrecenben, Nagyon Frekventált Részén! Ez a lenyűgöző, 3 szintes épület egyedülálló lehetőséget kínál azoknak, akik első osztályú helyen, az AUCHAN, STOP-SHOP, METRO, BENZINKUTAK ölelésében keresnek ipari ingatlant. A 2500 m²-es csarnok, és a hatalmas, 10670 m²-es telek ideális választás különféle ipari és kereskedelmi tevékenységek számára. Az ingatlan jó állapotban van, így azonnal használatba vehető. Az elhelyezkedése Debrecen egyik legjobban megközelíthető részén található, ami ideális mind az alkalmazottak, mind az ügyfelek számára. A belső tér kialakítása minden igényét kielégíti: az egylégterű nagy csarnok, vagy eladótéren át, a kisebb tárolásra raktározásra kialakított helyek, és az emeleti részeken kialakított szociális helyiségek és irodák is rendelkezésre állnak! Az ingatlan számos extrával rendelkezik, mint például klíma és riasztó rendszer, amelyek biztosítják a kellemes és biztonságos munkakörnyezetet. Háromfázisú áram áll rendelkezésre, ami sokféle ipari gép üzemeltetésére alkalmas, a kamera rendszer pedig gondoskodik a biztonságról. A kültéri felszereltség sem hagy kívánnivalót maga után: tágas udvari gépjárműbeálló lehetőség, parkólóhely akár 80 db autónak, melléképület, növeli az ingatlan értékét. A villamos energia ellátás 2 x 630 kVA teljesítményű. A fűtést 2 db 60-60 kW teljesítményű Baxi és 1 db 40 kW teljesítményű Vaillant gázkazán biztosítja. Ne hagyja ki ezt a páratlan lehetőséget! Vegye fel velünk a kapcsolatot még ma, és tekintse meg az ingatlant személyesen is. További információkért és megtekintésért keressen bizalommal! TRIPSÓ TIBOR +36 30 942 5373 Prémium ingatlanértékesítő Városi Ingatlaniroda Debrecen (További képekért és információkért kérem hívjon!)
https://ingatlanok.hu/kiado/ipari_ingatlan/debrecen/3-millio-ft;2500-negyzetmeter;egyeb-jellegu;nincs-megadva-tulajdonviszony/11594630