Az értékesítő:
Tripsó Tibor
+36 30 942 5373

Eladó családi ház Debrecen, 115 000 000 Ft, 200 négyzetméter

115 000 000 Ft
családi ház, 200 négyzetméter
Építőanyag:
Tégla
Egész szobák:
6
Ingatlan állapota:
Kitűnő
Azonosító:
11451450
Értékesítés típusa:
eladó
Ingatlan típusa:
családi ház
Jelleg:
Családi ház
Település:
Debrecen
Alapterület:
200
Telekterület:
730
Ár:
115 000 000 Ft
Fűtés jellege:
Cirkó
Terasz:
Van
Erkély:
Nincs
Beépíthető tetőtér:
Nincs
Melléképület:
Van
Pince:
Van
Klíma:
Nincs
Telekterület típusa:
négyzetméter
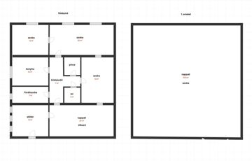
Debrecen Déli ipari parkjához közel, a kerekes telepen, 200 nm-es 4 szoba, 2 nappalis, összkomfortos nagy két szintes ház eladó. Az ingatlan méretei miatt befektetésnek is kiváló lehet, mert könnyen kialakítható benne akár 8 szoba is, szintenként 4 szoba. A kert szépen rendben tartott parkosított, melléképületekkel tarkított, és egy nagyméretű dupla garázs és kinti wc is található rajta. A fűtést gázkazán biztosítja radiátorokkal, a lakók kényelmét pedig, automata nagykapu és garázskapuk is biztosítják. (További képekért és információkért kérem hívjon!)
https://ingatlanok.hu/elado/haz/debrecen/115-millio-ft;200-negyzetmeter;6-szoba;cirko-futes/11451450