Eladó telek/földterület Szabadkígyós 3 500 000 Ft

Leírás

Eladó ideális méretű telek, kész tervdokumentációval!

Eladóvá vált Szabadkígyóson, a dél-alföldi régió egyik legszebb és legtermészetközelibb településén, egy kiváló helyen lévő, a főúttól pár száz méterre elhelyezkedő építési telek.
Szabadkígyós Békéscsaba megyeszékhelytől mindössze 12 km-re található, de Gyula fürdővárostól is csak 17 km-re fekszik.
A telek 1001 m2 területű, ideális alakú, 20 méteres utcafronttal rendelkezik.
A közművek az ingatlanra nincsennek bekötve, de minden (víz, gáz, villany, szennyvízcsatorna) a telek előtt, közterületen elérhető, így könnyedén megoldható azok bekötése.
Szabadkígyós benne van a Falusi csokra jogosult települések listájában, így a jelenleg legkedvezőbb feltételekkel építhető be a telek.
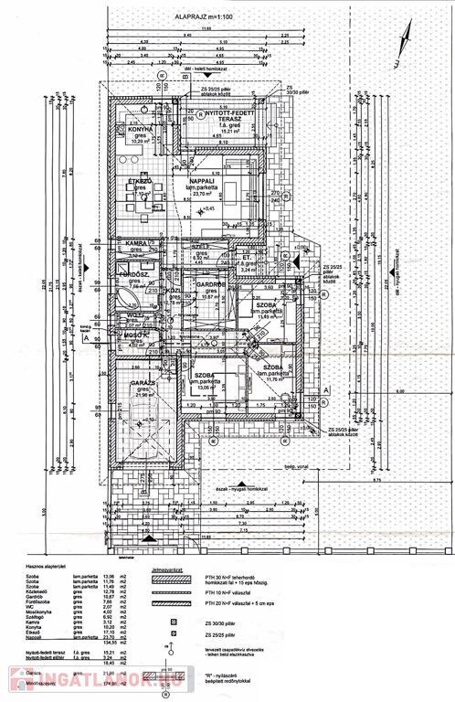
Az ingatlan 1/1 tulajdonban van, tehermentes, jogilag rendezett, illetve tartozik hozzá egy kész, a mai kor igényeinek megfelelő ház egyszerű bejelentési tervdokumentációja, melyet az ár tartalmaz (ennek bekerülési költsége jelenleg 1,5-2 M forint)!

Szabadkígyós Békés megyében egy igen lendületesen fejlődő település, amit a nemrégiben gyönyörűen felújított Wenckheim kastély és kastélyparknak, a Körös-Maros Nemzeti Park közel 5000 hektárnyi természetvédelmi területének, ahol egy tanösvény is ki lett alakítva, illetve a híres Ókígyósi Lipicai istállónak is köszönhető, hiszen ezeknek a látnivalóknak köszönhetően egy turista paradicsommá vált a település, így az ingatlan befektetésnek is kiváló lehetőség!
(További kínálatunkat keresse a VING hivatalos weboldalán.)

Telek/földterület részletei

Ár: 3 500 000 Ft
Méret: 1 001 Négyzetméter
Azonosító: 11408922
Irodai azonosító: 788053
Telek: 1001 Négyzetméter
Besorolás: Építési telek
Jelleg: belterület