Eladó lakás Makó 100 920 000 Ft

Leírás

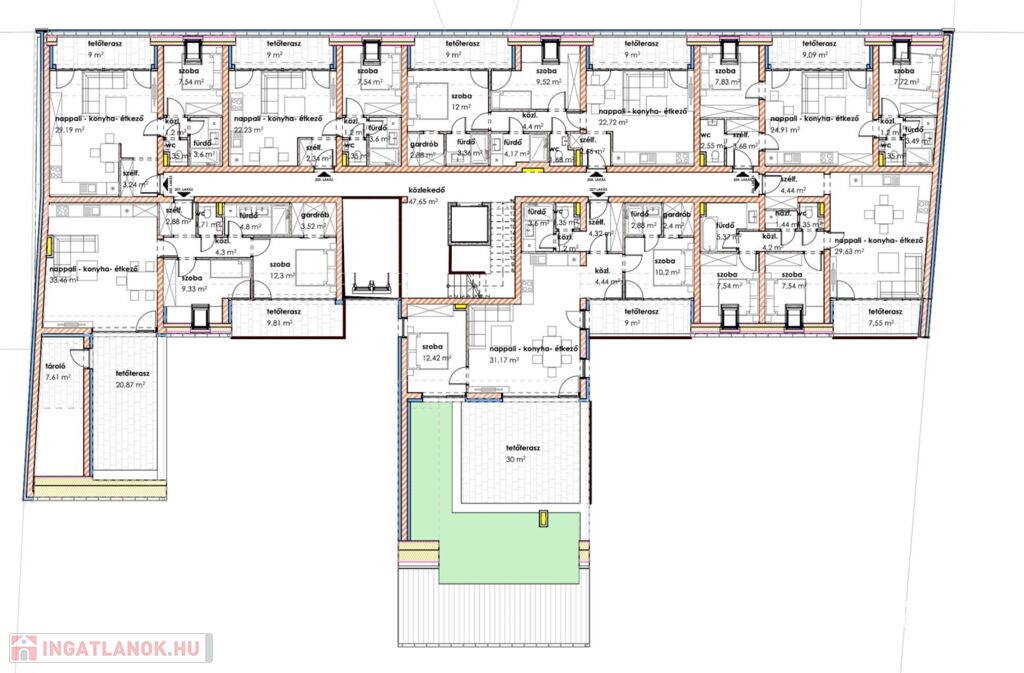
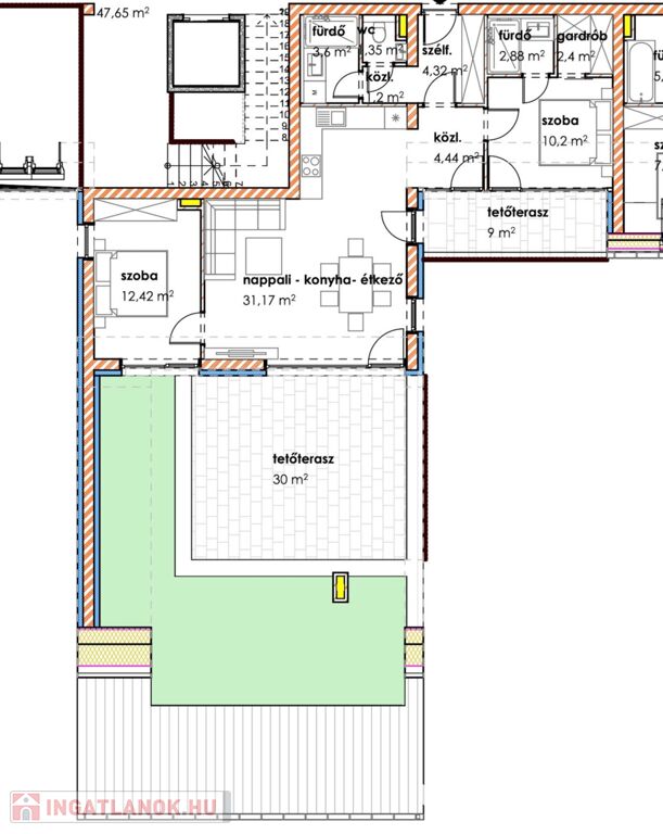
Makón, presztizs lokációval rendelkező - Makói fürdőtől 30 méterre - a Szent János téren - A Napfény Residenceben - , Eladó egy most induló, tégla építésű, MÁSODIK EMELETI , 98 nm-es élettérrel rendelkező, amerikai konyha nappali plusz kettő szobás, dupla fürdős, loggiás, 30 nm-es tetőteraszos (melyhez még 15 nm zöld terület is tartozik) tégla lakás (207.lakás), liftes házban.
Udvari kocsibeálló külön vásárolható az ingatlanhoz.
Az ingatlan elhelyezkedésre, kialakítása miatt, maximálisan kiemeli ezt az ingatlant az átlagos lakások sorából és egyedülálló választássá teszi azt, befektetésre, vagy lakhatási célra is.
A feltűntetett ár emelt szerkezetkész ár (magas műszaki tartalommal) , a kivitelező vállalja kulcsrakész befejezést is.
A kivitelező több mint 10 éve működő tőkeerős cég.
Az ingatlanra CSOK plusz, otthon start, és más hiteltámogatás is igénybe vehető.
A társasház összes 44 lakásból - 2 épületben, 28 Szent János tér, 16 Páva utca - áll, valamint tégla falazattal, monolit födémmel, készül el.
A lakás fűtéséről központi hőszivattyús padló fűtés (egyedi méréssel), hűtéséről fan-coilos helyiségenkénti hűtés (egyedi méréssel) gondoskodik.
Fontos tény, hogy teljesen hétköznapi használat mellett is a rezsicsökkentés értékhatárai alatti a fogyasztás, így a rezsiköltség rendkívül alacsony.
A 1 db amerikai konyhás nappalival, 2db hálószobával, 2 db fürdőszobával, közlekedővel, loggiával, terasszal, zöld területtel rendelkezik.
A lakás délnyugati fekvésű, napfényes ingatlan.

A környék infrastruktúrája tökéletes, tömegközlekedés, Hagymatikum 1 percnyire az ingatlantól.

Helyiségei:
- amerikai konyha, nappali
- 2 szoba
- dupla fürdő
- közlekedő, előtér
- loggia
- terasz és zöld terület

A teljes (totál) műszaki tartalom rendelkezésre áll, valamint a helyszín megtekintése is rugalmas.

Várom megtisztelő hívását:
KÓKAI FERENC Ving
+36 70 422 9777
Prémium ingatlanértékesítő
Szeged
(További képekért és információkért kérem hívjon!)

Lakás részletei

Ár: 100 920 000 Ft
Méret: 98 négyzetméter
Azonosító: 11587219
Irodai azonosító: 449009
Erkély mérete: 39.00 négyzetméter
Építőanyag: Tégla
Fűtés jellege: Hőszivattyú
Ingatlan állapota: Szerkezetkész
Komfort fokozat: Összkomfort
Egész szobák: 3
Nappalik: 1

Egyéb jellemzők

  • Erkély
  • Garázs
  • Klíma
  • Lift
  • Pince
  • Kertkapcsolat