Eladó lakás Hódmezővásárhely 44 900 000 Ft

Leírás

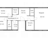
Hódmezővásárhelyen a Kálvin tér szomszédságában eladó, vagy szegedi panellakásra cserélhető egy szép állapotú, tágas napfényes tetőtéri lakás. Bruttó alapterülete 105 m2, nettó 80 m2 /az 1,9 m magasság által bezárt alapterület/.
Részletek:
-A lakás tégla falazatú, szépen karbantartott, lakható állapotú
-Lépcsőház tiszta, rendezett, jó lakóközösség
-Fűtése központi fűtés kondenzációs kazánnal, ami a meleg vizet is szolgáltatja + klíma
-Tetőtéri ablakok kicserélve
-Lakható állapotú, festés után azonnal költözhető
-Tehermentes, 1/1 tulajdon
-Közeli belváros, piac és boltok, óvoda, iskola, tram-train megálló és a buszállomás is 3 percen belül található
-CsOK Plusz Hitelre, 3 %-os Start Plusz Hitelre is alkalmas!
-Itt mindenki megtalálja a saját életterét, ahol nem zavarja a másikat: tágas, világos lakás kellemes belső térrel
-Az alagsorban 2 db saját tároló tartozik a lakáshoz
-Parkolás az utcán ingyenes

A lakás irányára: 44,9 M Ft
Ha megtetszett az ingatlan, hívjon és nézze meg élőben is!
Tisztelettel: Gonda Ildikó
Ingatlanértékesítő Városi Ingatlaniroda
Telefon : nulla hat hetven hatszáztizenkettő negyvenegy negyvenkettő
e-mail : gonda.ildiko@varos.hu

Irodánk készséggel áll ügyfeleink rendelkezésére nem csak ingatlanügyekben, de hitelügyintézésben is : 3 %-os fix kamatozású Otthon Start hitel, CSOK Plusz hitel, Falusi CSOK, egyéb jelzáloghitelek, babaváró kölcsön, szabad felhasználású hitelek, személyi kölcsön, jogi ügyekben /ügyvéd/ és energetikai tanúsítvány készítésében is /energetikus/.
(További képekért és információkért kérem hívjon!)

Lakás részletei

Ár: 44 900 000 Ft
Méret: 80 négyzetméter
Azonosító: 11581870
Irodai azonosító: 394595
Építőanyag: Tégla
Fűtés jellege: Cirkó
Ingatlan állapota: Kitűnő
Komfort fokozat: Összkomfort
Egész szobák: 3
Nappalik: 1

Egyéb jellemzők

  • Erkély
  • Garázs
  • Klíma
  • Lift
  • Pince
  • Kertkapcsolat