Eladó lakás Győr 72 000 000 Ft

Leírás

Győr-Nádorvárosban ajánlom figyelmébe, ezt a földszinti, erkélyes, hangulatos lakást garázzsal, tárolóval együtt!
Az ingatlan egy 1982-ben épült, ám remek műszaki állapotú, tégla építésű 9 lakásos társasház magasföldszintjén található.
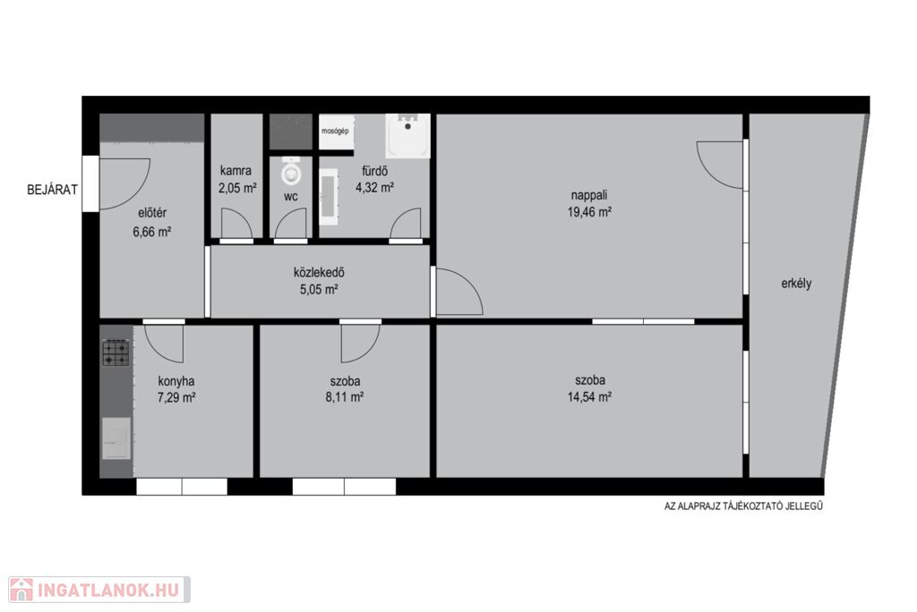
Elrendezése szerint: konyha-étkező, nappali, 2 hálószoba, előszoba, folyosó, kamra, zuhanyzós fürdőszoba, külön wc helyiségekből áll.
A lakás jó állapotban van, tulajdonosa gondját viseli az ingatlannak.
A nyílászárók két rétegű műanyag ablakok, redőnnyel, szúnyoghálóval felszerelve. A távfűtéses lakás hőleadói öntöttvas radiátorok, remek hőtartással. A nyári melegben a nappaliban található hűtő klíma berendezés biztosítja a kellemes hőmérsékletet.
2006-ban egy nagyobb felújítás keretében a vízvezetékek teljeskörű cseréjére is megtörtént, a villanyvezetékek részben cserélésre kerültek.
A dél-nyugati tájolásnak és nagy ablakfelületeknek köszönhetően a lakás mindig világos, könnyen átszellőztethető.
A konyhabútor jó elrendezésű, gáz főzőlappal és villanysütővel felszerelt.
A közös költség: ~ 13.000,-Ft, a fűtés a téli hónapokban sem haladja meg a 20.000,-Ft-ot, így a rezsi nagyon kedvező!
A szomszédok rendszerető, kedves emberek, jó a lakóközösség.
Az ingatlan ~70 m2 alapterületű +~6 m2 erkély, tartozik egy önálló, ~24 m2 alapterületű garázs és tároló, ahonnan a lépcsőházon keresztül is feljuthatunk a lakásba.
Mivel a lakás a garázs és a tároló egyben szerepel a tulajdoni lapon (101 m2), önállóan nem értékesíthető, így a vételár is így került meghatározásra, együtt van lehetőség annak megvásárlására.
A lakás értéke: 72.000.000,-Ft
A garázs értéke: 6.900.000,-Ft
A tároló 1.000.000,-Ft-ban került megállapításra.
Irányár mindösszesen: 79.900.000,-Ft.

Az infrastruktúra sem lehetne ennél jobb:
Nádorváros a belvároshoz közeli fekvése miatt a győriek egyik legkedveltebb városrésze, ahol elérhető minden, amire a hétköznapokban szükséges lehet.
Pár perc az iskola, óvoda, orvosi rendelő, gyógyszertár, bolt, a belváros, a vasútállomás, a buszmegálló, vagy a vidéki buszpályaudvar.
A háztól pár lépésre található egy park, mely remek hely sportolásra, családi sétákra, kikapcsolódásra.

Ilyen lakás csak ritkán kerül eladó sorba!
Ajánlom egyedülállóknak, pároknak, kis családoknak, de befektetés céljából is jólehetőség, hiszen könnyen bérbeadható.
Ügyfeleimnek az adásvétel során teljeskörű lebonyolítást vállalok, igény esetén díjmentes, bankfüggetlen hiteltanácsadással, ügyintézéssel segítem őket.
Az ingatlant rugalmasan, de előre egyeztetett időpontban tudjuk megtekinteni. Az ingatlanról további képeket külső fotókat kérésre szívesen küldök!
Várom hívását, legyen ez az Ön otthona, vagy befektetése!
(A hirdetésben szereplő adatok a tulajdonostól/megbízótól kapott információk alapján kerültek rögzítésre.)

Unger-Takács Anikó
+36 (70) 235 7733
unger.aniko@varos.hu
(További képekért és információkért kérem hívjon!)

Lakás részletei

Ár: 72 000 000 Ft
Méret: 70 négyzetméter
Azonosító: 11471612
Irodai azonosító: 162956
Erkély mérete: 4.00 négyzetméter
Építőanyag: Tégla
Fűtés jellege: Távfűtés
Ingatlan állapota: Átlagos
Komfort fokozat: Összkomfort
Egész szobák: 3
Nappalik: 1

Egyéb jellemzők

  • Erkély
  • Garázs
  • Klíma
  • Lift
  • Pince
  • Kertkapcsolat