Eladó lakás Győr 113 000 000 Ft

Leírás

A ház, ahol mindenki szeretne egy lakást!

Győr Belvárosában, az Árkád bevásárlóközponthoz közel keresem új tulajdonosát ennek a 99 m2-es, erkélyes, tágas lakásnak.
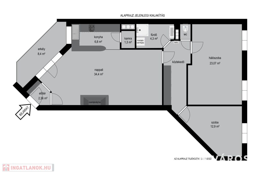
Az ingatlan egy liftes, 4 szintes társasház második emeletén helyezkedik el. A praktikus kialakítású otthon elosztása jelenleg:
nappali-konyha-étkező, kamra, jelenleg 2 hálószoba, zuhanyzós fürdőszoba, wc, előszoba, folyosó kialakítású, valamint egy belső udvarra néző, remek tájolású erkély is tartozik a lakáshoz. Az alaprajzokat a fotók között megtalálja.
Eredetileg 3 hálószobás volt, azonban jelenleg két szoba egybenyitásra került, ami könnyen visszaalakítható.
Az otthon melegéről gázkazán gondoskodik, radiátoros hőleadókkal. A nappali éke egy gyönyörű kandalló.
A fő falak 38 cm vastagságúak, hőszigetelt vakolattal ellátva, a válaszfalak 10 cm-es téglából kerültek kialakításra.
A nyílászárók 2 rétegű, hőszigetelt üvegezéssel ellátott műanyag nyílászárók, redőnnyel felszerelve.
A konyha gépesített: beépített gázfőzőlap, elektromos tűzhely, szagelszívó, mosogatógép található benne.
A lakásban riasztórendszer működik, a mindig megfelelő hőmérsékletet pedig klíma biztosítja .
A lakóközösség kiemelkedően jó, a lépcsőház zárt, rendezett, kaputelefonnal felszerelt, a ház külső homlokzata is magáért beszél.

A társasház aljában található egy garázs is, mely szintén megvásárolható, ára: 13 M Ft. (Önálló helyrajzi számmal rendelkezik, külön is értékesíthető, ezért megvásárlása opcionális)
Ha a belvárosban, csendes környezetben keresi tágas otthonát, szerintem megtalálta.
A környék infrastrukturális adottságai kiválóak: a belváros közelsége és a jó közlekedés megkönnyíti a mindennapi életet. A garázs lehetősége pedig ritka kincs ebben a városrészben, így autóját is biztonságban tudhatja.

Ügyfeleimnek az adásvétel során teljes körű lebonyolítást vállalok, igény esetén bankfüggetlen, díjmentes hiteltanácsadással és ügyintézéssel segítem őket.

Időpont egyeztetése miatt keressen elérhetőségeim bármelyikén:
Unger-Takács Anikó
+36702357733
unger.aniko@varos.hu

(A hirdetésben szereplő adatok, a tulajdonostól kapott információk alapján kerültek rögzítésre.)
(További képekért és információkért kérem hívjon!)

Lakás részletei

Ár: 113 000 000 Ft
Méret: 99 négyzetméter
Azonosító: 11599098
Irodai azonosító: 825851
Erkély mérete: 9.00 négyzetméter
Építőanyag: Tégla
Fűtés jellege: Cirkó
Ingatlan állapota: Átlagos
Komfort fokozat: Összkomfort
Egész szobák: 4
Nappalik: 1

Egyéb jellemzők

  • Erkély
  • Garázs
  • Klíma
  • Lift
  • Pince
  • Kertkapcsolat