Eladó családi ház Újszentiván 90 000 000 Ft

Leírás

Mindenben jó ház,árban,méretben,szobaszámban.
Az ingatlan teljes mértékig megfelel a mai kor igényeinek,hiszen saját kert területe,pont olyan méretű melynek gondozása nem veszi el az időt a gyerekektől és nem kell az egész hétvégét a fűnyíróba kapaszkodva eltöltenie.A szobaszám tökéletes,hiszen a nappali plusz három szoba a legideálisabb leosztás egy magánháznál.Az Újszentiváni elhelyezkedés,biztosítja a nyugalmas környezetet és a tiszta levegőt egy zöldebb környezetben,mint a városban.
A ház átadáskori készültségi szintje a következőket tartalmazza:
- Beltéri nyílászárók
- Burkolt felületek
- Kapcsolók és dugaljak (Schneider)
- Panasonic hőszivattyú (7 kw) padlófűtés rendszerrel kombinálva
Az ingatlannal kapcsolatban bármilyen kérdése felmerülne,keressen bizalommal:Laczkó Szabolcs +36707713137
(További képekért és információkért kérem hívjon!)

Családi ház részletei

Ár: 90 000 000 Ft
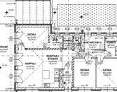
Méret: 97 négyzetméter
Azonosító: 11597271
Irodai azonosító: 591834
Erkély mérete: 27.00 négyzetméter
Telek: 445 négyzetméter
Ingatlan állapota: Kitűnő
Jelleg: családi ház
Építőanyag: Tégla
Fűtés jellege: Hőszivattyú
Egész szobák: 4
Nappalik: 1

Egyéb jellemzők

  • Beépíthető tetőtér
  • Csatorna
  • Garázs
  • Melléképület
  • Pince
  • Terasz