Eladó családi ház Salgótarján 5 990 000 Ft

Leírás

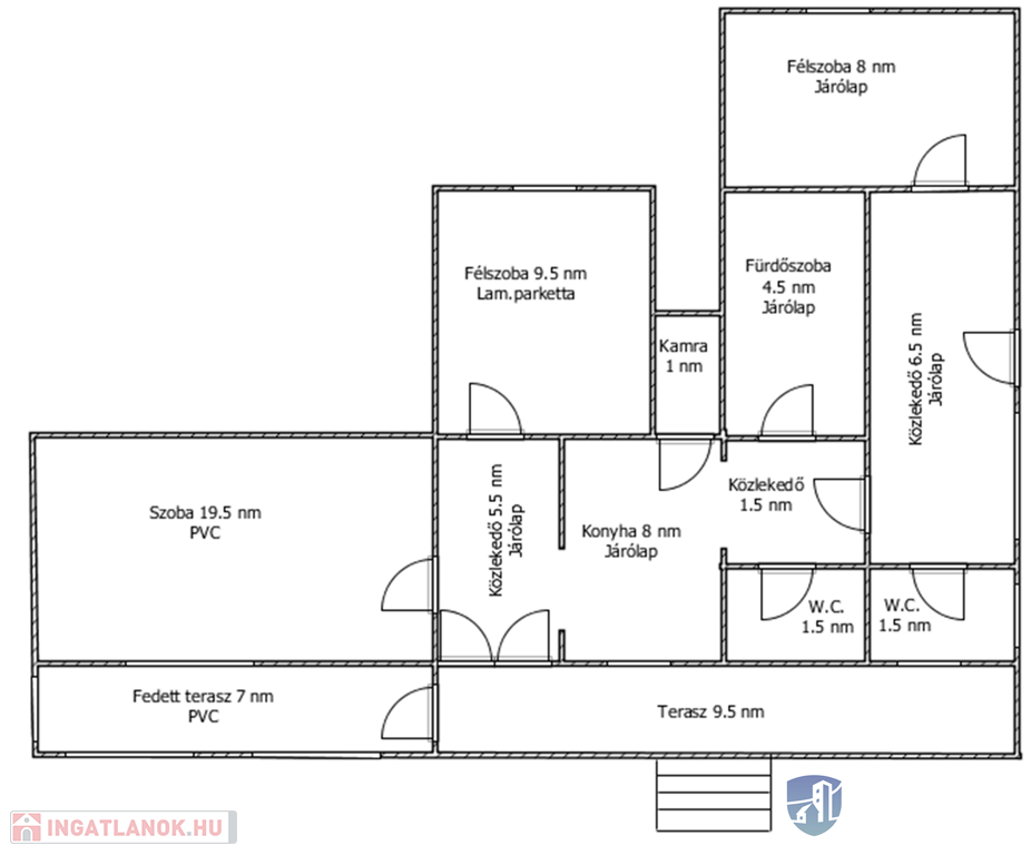
Salgótarjánban (Forgách telep), 73 nm-es, 1+2 félszobás, felújítandó, azonnal birtokba vehető ikerház eladó!

Az ingatlan a 60'-as években épült, tégla szerkezetű, cseréptetős. A tetőszerkezet felújított.

A víz, villany és a csatorna közművesítésre került. Gázcsonk a telken belül található.

A fűtés kályhával vagy elektromosan lehetséges, a meleg víz ellátást villanybojler biztosítja.

Az ingatlanhoz tartozó telek cca. 300 nm, osztatlan közös tulajdonú, körbekerített, füvesített.

A városközpont 10 perc alatt autóval elérhető. Buszmegálló, élelmiszerbolt 100 méterre található.
(További képekért és információkért kérem hívjon!)

Családi ház részletei

Ár: 5 990 000 Ft
Méret: 73 négyzetméter
Azonosító: 11393333
Irodai azonosító: 622255
Erkély mérete: 9.00 négyzetméter
Telek: 300 négyzetméter
Ingatlan állapota: Felújítandó
Jelleg: ikerház
Építőanyag: Tégla
Fűtés jellege: Kandalló
Egész szobák: 3

Egyéb jellemzők

  • Beépíthető tetőtér
  • Csatorna
  • Garázs
  • Melléképület
  • Pince
  • Terasz