Eladó családi ház Salgótarján 22 500 000 Ft

Leírás

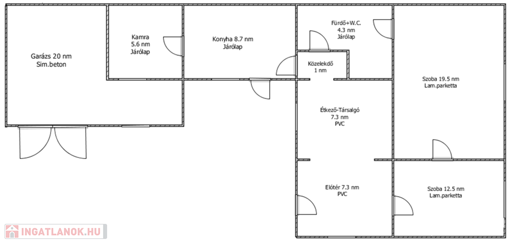
Salgótarjánban (Zagyvapálfalva), csendes, átmenő forgalomtól mentes utcában, 65-nm-es, külső szigeteléssel ellátott, összközműves, tehermentes családi ház eladó!

Az épület 50'-es években épült, vályog+tégla szerkezetű, cseréptetős, statikailag kiváló állapotú.

Helyiségei: 2 szoba, konyha, étkező-társalgó, kamra, fürdőszoba, előszoba.

A fűtést gázkonvektorok, alternatív lehetőségként cserépkályha, a meleg víz ellátást átfolyós rendszerű gázos vízmelegítő biztosítja.

Az ingatlanhoz tartozó telek 2254 nm nagyságú, nagyobb részben az épület mögött helyezkedik el, lankás, füvesített, területén termő gyümölcsfák, gazdálkodásra alkalmas melléképületek találhatók.

Az épület mellett garázs, borospince, térkövezett terasz, valamint, felszíni gépkocsibeálló került kialakításra.

A városközpont autóval 10 perc, Tesco, Lidl, egyéb kereskedelmi -és szolgáltató egységek 5 perc. Buszmegálló 100 méterre található.
(További képekért és információkért kérem hívjon!)

Családi ház részletei

Ár: 22 500 000 Ft
Méret: 65 négyzetméter
Azonosító: 11558642
Irodai azonosító: 968795
Telek: 2254 négyzetméter
Ingatlan állapota: Felújított
Jelleg: családi ház
Építőanyag: Tégla
Fűtés jellege: Konvektoros
Egész szobák: 2

Egyéb jellemzők

  • Beépíthető tetőtér
  • Csatorna
  • Garázs
  • Melléképület
  • Pince
  • Terasz