Eladó családi ház Röszke 71 990 000 Ft

Leírás

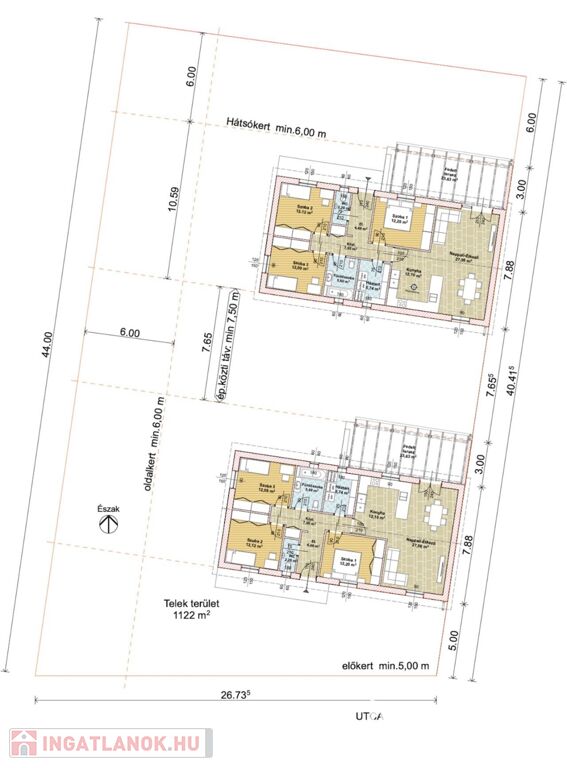
Röszkén Eladó egy most induló, tégla építésű, 99 nm-es élettérrel rendelkező, nappali plusz három - négy szobás családi ház, amelyhez igény szerint terasz, vagy medence is járhat (ez külön megállapodás lehet az eladóval), mindenezek mellett egy 500 nm - es telek is jár hozzá.
A feltűntetett ár kulcsrakész ár, csak a konyhabútor, valamint a mennyezeti armatúrák, valamint a burkolatok és festés költségét nem tartalmazzák.
Az ingatlanra CSOK plusz, otthon start, és más hiteltámogatás is igénybe vehető.
A ház 1 db nappalival, 3-4 db hálószobával, 1 db fürdőszobával, konyha étkezővel közlekedővel, terasszal rendelkezik. Az ingatlan elhelyezkedésre, kialakítása miatt, maximálisan kiemeli ezt az ingatlant az átlagos lakások sorából és egyedülálló választássá teszi azt. További előny. hogy ház hőszivattyús padló fűtéssel, klímás hűtéssel lesz felszerelve.
Fontos tény, hogy teljesen hétköznapi használat mellett is a rezsicsökkentés értékhatárai alatti a fogyasztás, így a rezsiköltség rendkívül alacsony.
A lakás délnyugati fekvésű, napfényes ingatlan.
A környék infrastruktúrája tökéletes, tömegközlekedés, 1 - 3 percnyire az ingatlantól.

Helyiségei:
- amerikai konyha, nappali
- 3-4 szoba
- dupla fürdő
- wc
- közlekedő, előtér
- terasz

A teljes (totál) műszaki tartalom rendelkezésre áll, valamint a helyszín megtekintése is rugalmas.

Várom megtisztelő hívását:
KÓKAI FERENC Ving
+36 70 422 9777
Prémium ingatlanértékesítő
Szeged
(További képekért és információkért kérem hívjon!)

Családi ház részletei

Ár: 71 990 000 Ft
Méret: 99 négyzetméter
Azonosító: 11578282
Irodai azonosító: 472541
Erkély mérete: 23.00 négyzetméter
Telek: 520 négyzetméter
Ingatlan állapota: Kitűnő
Jelleg: családi ház
Építőanyag: Tégla
Fűtés jellege: Hőszivattyú
Egész szobák: 4
Nappalik: 1

Egyéb jellemzők

  • Beépíthető tetőtér
  • Csatorna
  • Garázs
  • Melléképület
  • Pince
  • Terasz