Eladó családi ház Nagykanizsa 89 990 000 Ft

Leírás

Nagykanizsán nincs még egy ilyen családi ház!!!

Nagykanizsa Miklósfai városrészében, csendes átmenő forgalomtól mentes utcában vált eladóvá, ez a nagy mérettel rendelkező, számos lehetőséget rejtő családi ház. Az ingatlan egy közel 2500m2-es telken került megépítésre 1996-ban. Az építést nézve beton alappal, 35-ös tégla falazattal, Bramac tetőfeddéssel látta meg a napvilágot. A közművek terén 3 fázis került bevezetésre, valamint víz villany és szennyvíz rákötéssel is rendelkezik. Jelenlegi állapotát nézve felújítást igényel, de így magában rejti azon lehetőséget, hogy az új tulajdonosa igényei szerint alakítsa, formálja a belső teret.
Az épület 3 szintből tevődik össze:
Földszint: 1 nagy négyzetméterű és 1 kis négyzetméretű külön bejáratú lakrész. (Igény szerint akár két generációnak)
Kis lakás helységfelosztása: 2 külön bejáratú szoba, konyha étkező, kamra, előszoba, fürdő.
Nagy ház: 2 közlekedő, előszoba, mosókonyha, kis fürdő, gépészeti helység, nappali közvetlen udvarkapcsolattal, szoba, dupla garázs.
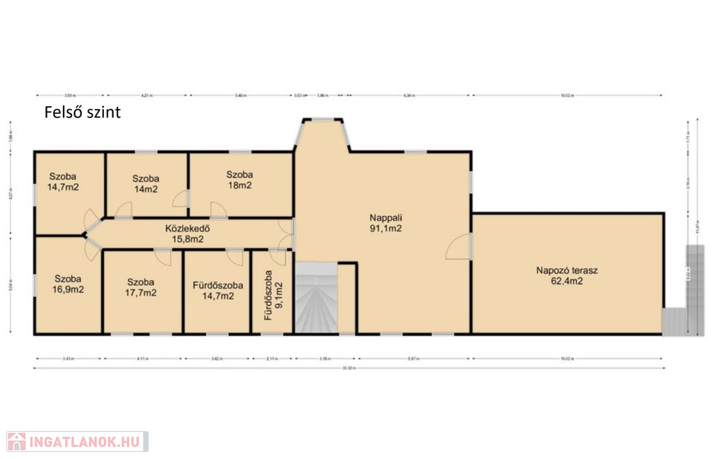
Felső szint: 5 külön bejáratú szoba, közlekedő, 2 fürdő, nagy méretű nappali közvetlen teraszkapcsolattal.
Pinceszint: (megközelítőleg 8m-re a föld alatt) 154m2 - Wellness részleg, nagy méretű medencével, szaunával, merülő medencével, gépészeti helységgel.
A ház fűtését egyedi gáz radiátor szolgáltatják.
Az udvarban való közlekedés térkőburkolaton megoldott. A gépkocsik parkolása dupla garázsban lehetséges.
Ha Ön szeretne egy nagy négyzetméterrel rendelkező, igaz jelenleg felújítandó házat, egyedi wellness kialakítással, ami akár nagycsaládosoknak, akár vállalkozásra is alkalmas lehet, akkor ez az ingatlan kiváló választás lehet.
Kulcs az irodában. Per és tehermenetes!
Iroda: Nagykanizsa Platán sor 7
(További kínálatunkat keresse a VING hivatalos weboldalán.)

Családi ház részletei

Ár: 89 990 000 Ft
Méret: 599 négyzetméter
Azonosító: 11393079
Irodai azonosító: 612904
Telek: 2451 négyzetméter
Ingatlan állapota: Felújítandó
Jelleg: családi ház
Építőanyag: Tégla
Fűtés jellege: Cirkó
Egész szobák: 11
Nappalik: 2

Egyéb jellemzők

  • Beépíthető tetőtér
  • Csatorna
  • Garázs
  • Melléképület
  • Pince
  • Terasz