Eladó családi ház Győr 118 000 000 Ft

Leírás

Legyen Ön a Tulajdonosa az Új építésű Ikerházak egyikének!

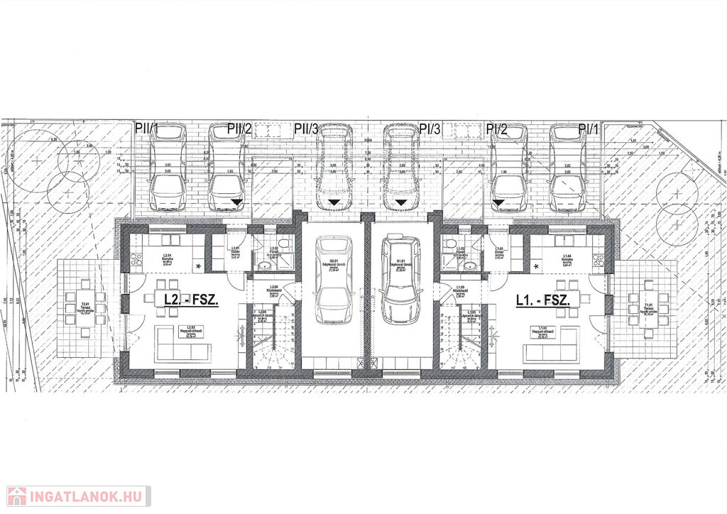
Győr kedvelt részén Kisbácsán kínálok megvételre igényes kivitelező által tervezett és épített belső 2 szintes 135 m2-es Ikerházat garázzsal, 3 udvari beállóval, 295 m2-es telekhányaddal.

A 2022-ben saroktelekre épült 2 Ikerház egymás tükörképei a legkorszerűbb építőanyagok felhasználásával készült, prémium minőségben és állandó műszaki felügyelet mellett.

A lakóépület jelenleg emelt szintű szerkezetkész-fűtéskész állapotú!

Az ingatlan tartalmazza:
-134,46 m2 lakótér és garázs
-14,1 m2 terasz és zárt udvar
-2 erkély (5,64 m2 és 4,3 m2)
+ 3 db gépkocsi parkoló
Telek méret 295 m2, melyből 145 m2 parkosítható zöldterület.

A belső kétszintes ház kialakításának köszönhetően jól elkülönülnek egymástól a nappali (társasági) és éjszakai (privát) rendeltetésű funkciók.

Földszinten:
Nappali - étkező - konyha, fürdőszoba (mosdó-zuhanyzó-wc), előtér, közlekedő, lépcsőtér és garázs került kialakításra.
A nappali-étkező-konyhához kapcsolódik a terasz és a házat körülölelő zárt udvar, a 3 db gépkocsi parkoló az utcafronton kapcsolódik a közterülethez.

Emeleten:
4 db hálószoba, fürdőszoba (dupla mosdó-zuhanyzó-fürdőkád), külön wc helyiség, közlekedő és 2 db erkély került kialakításra (mely 3 szobához kapcsolódik).
A lakóegységek felett található alacsony belmagasságú - tárolóként használható - padlásteret könnyedén lehajtható padlásfeljárón keresztül lehet megközelíteni.

Műszaki jellemzők:
30 cm-es Porotherm főfalak, 10 cm-es válaszfalak
Bramac tetőcserép, színes alumínium lemezfedés, Lindab ereszcsatorna,
Austrotherm hőszigetelések; 15 cm-es Grafit homlokzati hőszigetelés, tető, padlástéri, lábazati- és padló szigetelés
Lakóegységhez tartozó Vaillant kondenzációs gázkazán padlófűtéssel, mely szintenként szabályozható, illetve igény szerint lehetőség van a helyiségek egyedi szabályozására
Inverteres hűtő-fűtő klíma alapszerelés (nappali + 4 szobában kialakítva)
Több ponton záródó bejárati ajtó, kívül antracit belül fehér színben 3 rétegű hőszigetelt külső nyílászárók, Velux tetőtéri ablakok
Beépített alumínium redőnyszerkezet antracit színben
A helyiségeket tágas, világos terek jellemzik, különös tekintettel az amerikai konyhás nappalira, ahol dupla ajtó és 3 ablak került beépítésre
Hörmann hőszigetelt elektromos garázskapu (hálózatról és távirányítóval egyaránt működtethető)
Tűzihorganyzott acélszerkezetű korlátok
Épített kerítés, épített kukatároló - villamosfogadó
Udvari járdák és térburkolt gépkocsi beállók, tereprendezés
A garázzsal határos lakóegységek között hanggátló falak, tető- és padlástéri térelhatárolás: tűzgátló és impregnált építőlemezek
Lakóegységenként kiépített elektromos hálózat (230V- 32 A)
Lefűzött villanyszerelés és kapcsolószekrény
Önálló közüzemi mérőórák (villany, gáz, 2 vízóra- egy a használati vízhez 1 a kerti locsolóhoz)
Energetikai besorolása BB, a klímák felszerelésével AA besorolást kap.

A hirdetési ár magába foglalja:
- Saját tulajdonú 295 m2 telekrészt (145 m2 parkosítható zöldterülettel, zárt udvarral)
- 134,46 m2 lakótér + garázst
- 3 db gépkocsi parkolót

A leendő tulajdonos elképzelései, megbízása szerint a kivitelező vállalja a kulcsrakész befejezést is rövid határidővel, szakemberekkel, garanciával.
Az Ikerház kizárólag használati megállapodással vásárolható meg!
Tehermentes ingatlan!
Kérem tekintse meg a tájékoztató alaprajzot is!

Kisbácsa Győr kedvelt falusias lakóövezete, mely Győr belvárosától 6 km-re található; a jó közlekedésnek köszönhetően 10 perc alatt elérhető. Az Audi gyár könnyedén és gyorsan megközelíthető az új Klatsmányi hídon keresztül. Közelben bolt, posta, gyógyszertár, általános iskola.

Jelen hirdetésben rögzített, az ingatlannal kapcsolatos adatok, információk az Eladó/Megbízó tájékoztatása alapján kerültek meghatározásra.
Irodánkban ügyvédi tanácsadással, teljeskörű bankfüggetlen hitelügyintézéssel (CSOK, kamattámogatott hitel) tudjuk segíteni a gyors és megbízható ügyintézést.

Amennyiben felkeltette érdeklődését az Ikerházak valamelyike, további kérdése van vagy megtekintené az alábbi telefonszámon érdeklődhet!
Szabó Ibolya +36706174858
(További képekért és információkért kérem hívjon!)

Családi ház részletei

Ár: 118 000 000 Ft
Méret: 135 négyzetméter
Azonosító: 11393982
Irodai azonosító: 853203
Erkély mérete: 5.00 négyzetméter
Telek: 295 négyzetméter
Ingatlan állapota: Szerkezetkész
Jelleg: ikerház
Építőanyag: Tégla
Fűtés jellege: Cirkó
Egész szobák: 5
Nappalik: 1

Egyéb jellemzők

  • Beépíthető tetőtér
  • Csatorna
  • Garázs
  • Melléképület
  • Pince
  • Terasz