Eladó családi ház Endrefalva 55 000 000 Ft

Leírás

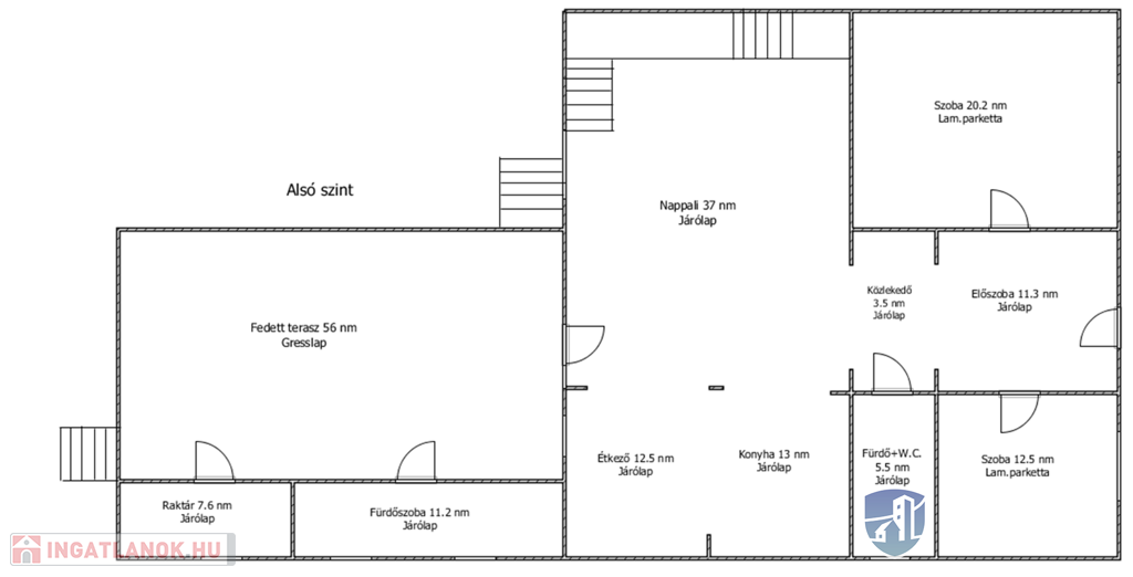
Nógrád megye, Endrefalva, 200 nm-es, 2 szintes, nappali+5 szobás, 2 fürdőszobás, kiváló állapotú, tehermentes családi ház eladó!

Az családi ház 20 éve nyerte el mai formáját, egy kis méretű épület bővítésével.

A minőségi anyagok használatával kialakított kül-és beltér azóta is folyamatosan karbantartott.

Az 56 nm-es, fedett terasz és a hozzá tartozó kiszolgáló helyiségek (raktár és vizesblokk) néhány éve épültek.

A fűtést hagyományos kazán, a meleg víz ellátást villanybojler biztosítja.

Az ingatlanhoz tartozó telek cca, 1000 nm nagyságú, körbekerített, területén vállalkozásra alkalmas felépítmények (2 db raktár, fedett és zárt 130-130 nm), fedett felszíni autóbeálló (45 nm) található.

Budapesti és/vagy salgótarjáni ingatlan beszámítása lehetséges!

Falusi CSOK, Babaváró hitel igényelhető!
(További kínálatunkat keresse a VING hivatalos weboldalán.)

Családi ház részletei

Ár: 55 000 000 Ft
Méret: 200 négyzetméter
Azonosító: 11393382
Irodai azonosító: 967115
Erkély mérete: 56.00 négyzetméter
Telek: 1000 négyzetméter
Ingatlan állapota: Kitűnő
Jelleg: családi ház
Építőanyag: Tégla
Fűtés jellege: Cserépkályha
Egész szobák: 6
Nappalik: 1

Egyéb jellemzők

  • Beépíthető tetőtér
  • Csatorna
  • Garázs
  • Melléképület
  • Pince
  • Terasz