Eladó családi ház Budapest XVIII. ker 135 000 000 Ft

Leírás

Budapest XVIII. kerületének csendes, zöldövezeti utcájában kínálom megvételre ezt a kiváló adottságokkal rendelkező, új építésű ikerházfelet, amely ideális választás lehet családok számára.

Az ingatlan 118 m² lakótérrel rendelkezik, melyhez egy 12,34 m²-es terasz és 293 m²-es leválasztott saját telek tartozik. A ház elosztása átgondolt, jól bútorozható terekkel, világos, napfényes helyiségekkel.

A nappali közvetlen kapcsolatban áll a terasszal és a kerttel, így tökéletes helyszínt biztosít a mindennapi családi élethez és a kikapcsolódáshoz egyaránt.

Az ikerház kialakítása során kiemelt figyelmet fordítottak a megfelelő szeparáltságra: a két lakás között dupla főfal és légrés biztosítja a nyugodt, zavartalan lakhatást.
A garázs előtt 5 m előkert került kialakításra, így igény esetén egy további autó felszíni beállása biztosított.

Az ingatlan bejárata az oldalkert felől nyílik és egy előtetővel védett bejárati ajtón keresztül ,az előtérbe vezet.
Innen lehet megközelíteni a hátsó kert felé tájolt nappali-étkező-konyhát,
az utca felé tájolt zuhanyzót. A konyhához kamra is tartozik.
A nappaliból egy nagy teraszra jutunk ki, mely biztosítja a lakás kert kapcsolatát.
Az ingatlanhoz egy egy állásos garázs és tároló is tartozik, az előtéren keresztül belső átjáró a lakótérbe.
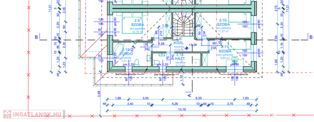
Az emeleten három hálószoba, közlekedő, fürdőszoba és háztartási helyiség kerül kialakításra.
A háztartási helyiségben külön WC is helyet kap.
A belső elrendezést a képek közötti alaprajzon találja.


Az ingatlan korszerű műszaki tartalommal, modern építési megoldásokkal készül, energiatakarékos kialakítással. A kulcsrakész állapot lehetővé teszi, hogy az új tulajdonos azonnal birtokba vegye.

- vasalt sávalapozás 50 cm szélességben,
- 2 rét.bitumenes talajnedvességelleni szigetelés,
- zsalukő lábazat,
- a homlokzati rendszeren 15 cm grafitos szigetelés,
- betongerendás födém a földszinten,
- az emelet felett fagerendás födém,
- 30 cm hőszigetelés a legfelső födémen,
- betoncserép héjalás,
- horganyzott acéllemez csatornák a csapadék elvezetésére,
- a csapadékvizet épített vízgyűjtő ciszternába vezetve,
- levegő-víz hőszivattyú lesz a tárolókban elhelyezve,
amely biztosítja a fűtést és meleg víz ellátást,
- H tarifa tovább csökkenti a felhasznált elektromos áram árát,
- padlófűtés, plusz a fürdőkben törölközőszárítós radiátorok is fel lesznek szerelve,
3 db inverteres klíma, amely egész évben segíti a kellemes hőérzet eléérését,
műanyag 5 légkamrás nyílászárók,
- nyitásérzékelő minden helyiségen,
- rejtett redőnytokok helyének kiépítésével,
- elektromosan vezérelt alumínium redőnyök,
- szúnyogháló helyiségenként 1 db,
- riasztó rendszer a biztonságért,
- hő és hangszigetelt szekcionált garázskapu elektromos motorral felszerelve,

A környék kiváló közlekedési lehetőségeket kínál, a belváros pedig könnyen és gyorsan elérhető.

A telken belül kényelmes parkolási lehetőség biztosított.

A környék infrastruktúrája kiváló: a közelben megtalálható minden, ami a mindennapokhoz szükséges – bevásárlási lehetőségek, iskola, óvoda, valamint Budapest könnyen és gyorsan elérhető.

Ez az ingatlan ideális választás mindazok számára, akik modern, kertkapcsolatos otthont keresnek nyugodt környezetben.

Az építkezés folyamatában igény szerinti belső kialakítás, választható burkolatok, szaniterek, belső ajtók, a kiegészítő műszaki tartalom szerinti elszámolással.
Több mint 10 éves tőkeerős cég, sok referencia ház a környéken , különböző építési fázisokban is megtekinthető építkezések.

Várható átadás 2026. Il-III.negyedév.
Szerződéskötését ügyvédi háttérrel biztosítjuk, hitelügyintézés bank független hiteltanácsadóval.

Ne hagyja ki ezt a remek lehetőséget, hogy egy igényesen kivitelezett, modern és kényelmes otthon tulajdonosa legyen Budapest egyik zöld oázisában!

Keressen minket bizalommal, és tekintse meg személyesen ezt a kivételes ingatlant!
(További képekért és információkért kérem hívjon!)

Családi ház részletei

Ár: 135 000 000 Ft
Méret: 118 négyzetméter
Azonosító: 11560431
Irodai azonosító: 853797
Telek: 293 négyzetméter
Ingatlan állapota: Kitűnő
Jelleg: ikerház
Építőanyag: Tégla
Fűtés jellege: Hőszivattyú
Egész szobák: 4
Nappalik: 1

Egyéb jellemzők

  • Beépíthető tetőtér
  • Csatorna
  • Garázs
  • Melléképület
  • Pince
  • Terasz